Lo esencial
- Pisos : 2
- Área : 600 m²
- Tamaño del lote: 420 m²
Descripción
-
Descripción:
Edificio con Oportunidad de Desarrollo
Una Prometedora Oportunidad de Inversión en una Ubicación Estratégica
Presentamos un emocionante proyecto de edificación en Olletas-Sierra Blanquilla. Con el proyecto básico ya en proceso y una licencia estimada en 1-2 meses, este edificio de 420 m2 ofrece un potencial extraordinario para inversores y desarrolladores visionarios.
Potencial de Desarrollo y Detalles del Proyecto
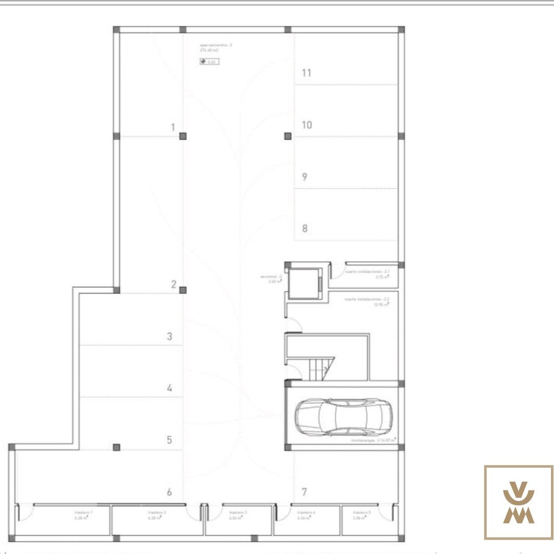
Con varias opciones de desarrollo disponibles, desde la reestructuración hasta la creación de un nuevo espacio innovador, este edificio de 600 m2 presenta la posibilidad de transformación en un espectacular complejo residencial. El plano adjunto resalta las características únicas del diseño, incluida la integración fluida del semisótano con la planta baja, brindando un espacio lleno de posibilidades.
Existe la posibilidad de demoler y construir hasta 1000 m2 techo y 14 viviendas.
Haz Realidad tu Visión: Contacta Hoy para Más Detalles
Esta oportunidad única, con un precio competitivo, ofrece un potencial de retorno de inversión excepcional en una de las zonas más prometedoras de Olletas-Sierra Blanquilla. ¡No dejes pasar la oportunidad de ser parte de esta transformación! Contáctanos ahora para obtener más información y descubrir cómo puedes hacer realidad tus ambiciones en el mundo inmobiliario.
Mostrar toda la descripción
Pregúntele a un agente sobre esta casa
Este/a está en , actualmente . Con un precio de 600.000€. Tiene dormitorios, baños, y con un área de 600 m².